Overview
- Updated On:
- May 2, 2024
Description
Luxurious Gated Community in Shanzu
Discover the epitome of refined living in Shanzu’s upcoming development, situated on an expansive 0.8-acre plot. With only four exclusive units in this gated community, seize the opportunity to claim one of the last remaining residences.
Boasting meticulous attention to detail, each of the four-bedroom units is en-suite, offering unparalleled comfort and privacy. The spacious interiors span an impressive 7,500 square feet, complemented by a full terrace spanning an additional 2,000 square feet—ideal for envisioning your outdoor oasis.
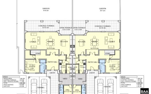
Convenience meets sophistication with an inbuilt lift granting seamless access from the ground floor to the terrace. On the ground level, indulge in the comfort of a well-appointed living room, dining room, and fully equipped kitchen with a breakfast table adorned in marble. Additional features include two mini domestic staff quarters, with the option for an en-suite bedroom, as well as a designated laundry and drying area.
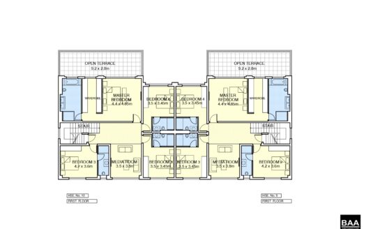
Ascend to the first floor to discover three bedrooms adorned with fitted cupboards, each boasting its own en-suite bathroom. This level also offers a cozy space for TV viewing or the option to create a coffee bar, adding to the allure of modern living.
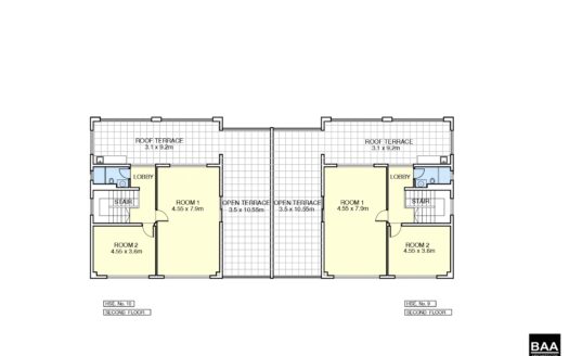
The pinnacle of luxury awaits on the second floor, where a sprawling master bedroom awaits, accompanied by expansive dressers and a dedicated TV area.
Beyond the interiors, ample guest parking for approximately 15 cars ensures that hosting gatherings is effortless. Each unit also includes personal reserved parking and a beautifully landscaped garden, enhancing the sense of exclusivity and tranquility.
Priced at 120 million, negotiable, seize this rare opportunity to secure your place in Shanzu’s most coveted address.























